RML Design Studio
Home design
HOME
STOCKPLANS
CONTACT
STOCKPLAN
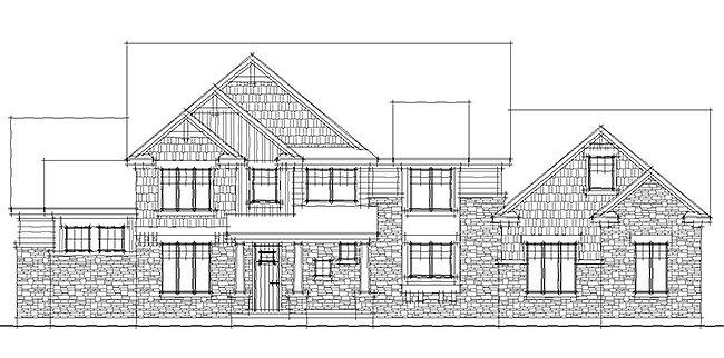
REDWOOD
2-Story - 3087 sqft
Beds: 4
Baths: 2.5
Width: 82 ft
Depth: 51 ft